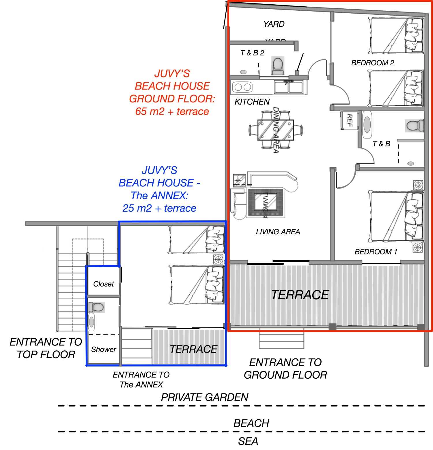
Juvy's Beach House - The Annex

For up to 4 People


Address: Canal, 6225 Siquijor, , Philippines

Size: 25.0 m², 1 Room, 1 Bedroom, 1 Bathroom

Beds: 2 Double beds

Prices: 53 USD - 62 USD / Night

More pricing information:

Prices from PHP 3000 to 3500 per night depending on season.

Amenities

  • Towels and bed sheets
  • TV
  • Air conditioning
  • Wireless internet
  • Hangers
  • Freezer
  • Toilet paper and soap
  • Cable TV
  • Internet
  • Terrace
  • Pets allowed

Map

Calendar

Arrival
Departure
People